Next:
Состав ЦСП и размещение Up: Техническое описание приводов БТА Previous: Назначение ЦСП

Общие сведения о построении ЦСП

Цифровой следящий привод азимутальной оси БТА выполнен по двухмоторной схеме и состоит из двух подобных ветвей - привода наведения и привода ведения.

Основным назначением привода наведения является режим быстрого перенаведения телескопа с одного объекта на другой, автоматическое ведение телескопа, осуществление различных технологических операций и переустановка телескопа по азимутальному углу.

Основным назначением привода ведения является точное удержание небесных объектов на оптической оси телескопа в автоматическом режиме работы системы управления и ручное управление телескопом при различных технологических операциях.

Принципиальные различия между приводами наведения и ведения заключаются только в коэффициентах редукции и моментах нагрузки исполнительных двигателей.

Выбор двухмоторной кинематической схемы был сделан для получения большего диапазона регулировки. Это требование связано с альт-азимутальной монтировкой телескопа. При слежении за небесными объектами азимутальная скорость телескопа, в идеале, должна плавно изменяться от нуля до бесконечности. Реально получение бесконечного диапазона регулирования скорости технически невозможно, поэтому диапазон рабочих скоростей азимутального привода БТА имеет ограничения сверху, которые составляют 45 градусов в минуту для привода наведения и 2.5 градуса в минуту для привода ведения.

Привод оси Z выполнен по одномоторной схеме. Один дигатель выполняет функции наведения и ведения.

Особым требованием, к приводам обеих осей телескопа, является высокая точность и плавность создаваемого ими движения в режиме ведения,которая не должна зависеть от средней скорости сопровождения. Ошибка сопровождения по датчику, для обеих осей, не должна превышать $\pm 0.15''$.

Из этого следует, что абсолютная погрешность ЦСП телескопа должна оставаться неизменной при любой скорости движения, при этом относительная погрешность может изменяться обратно пропорционально средней скорости движения.

Принцип построения ЦСП телескопа основан на применении трехконтурной комбинированной цифровой следящей системы с ЭВМ в главном контуре управления.

Первым, низшим по уровню, является контур стабилизации скорости вращения серводвигателей. Этот контур полностью реализован внутри сервоприводов с микроконтроллерным управлением. Его основной задачей является достижение максимально полного соответствия между фактической и задаваемой от ЭВМ скоростями вращения двигателей. Структурная схема сервопривода MUVIDYN с нагрузкой приведена на рис.1.

\resizebox*{0.9\textwidth}{!}{\includegraphics{sxema.eps}}

Рис.1. Общая структурная схема сервоприводов А и Z.

На вход сервоконтроллера привода поступает сигнал задания скорости, который попадает в блок регулятора скорости. В целом работа этого блока описывается достаточно сложным алгоритмом (см. описание MUVIDYN - контроллера). Регулятор скорости вычисляет фактическую скорость серводвигателя, сравнивает ее с заданием и вырабатывает сигнал управления в блок регулятора тока. Управляющее воздействие регулятора должно, за определенный интервал времени, привести к устранению рассогласования между заданной и фактической скоростью. В дальнейшем регулятор поддерживает заданную скорость вращения сервопривода независимо от флуктуаций крутящего момента со стороны нагрузки. Механической нагрузкой сервопривода является редуктор и телескоп. Обратная связь по скорости замыкается в сервоприводе через резольвер, установленный непосредственно на валу серводвигателя, который обеспечивает регистрацию угла поворота с разрешением $0.35^{\circ}$.

Кроме стабилизации скорости вращения, нижний контур обеспечивает также стабилизацию фазовых характеристик ЦСП в переходных режимах.

Питание всех компонентов схемы осуществляется от трехфазной электрической сети $\sim 380$B и частотой 50 Гц. Питающее напряжение подается на панель сетевых фильтров щита сервоконтроллеров по электрическому кабелю из помещения машинного зала БТА. Режим подачи питания на сервоконтроллеры ЦСП определяется системой управления БТА.

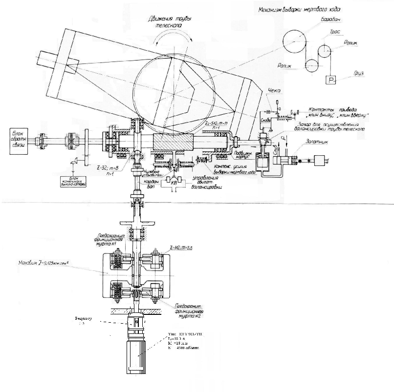
Ниже, на рис.2 и 3, приведены полные кинематические схемы приводов телескопа, с указанием передаточных отношений звеньев и моментов инерции маховых масс.

\resizebox*{1.35\textwidth}{!}{\includegraphics{privod_Z.eps}}

Рис.2. Кинематическая схема привода Z БТА.

\resizebox*{1.1\textwidth}{!}{\includegraphics{privod_A.eps}}

Рис.3. Кинематическая схема привода А БТА.


наверх